Model Veluwe – 39m² Barn Style Blokhut met Twee Slaapkamers, Royale Woonkamer en Badkamer | 6,88m x 5,63m Luxe Tiny House voor Recreatie, Glamping of als Gastenverblijf
Model Veluwe – 39m² Barn Style Blokhut met Twee Slaapkamers, Royale Woonkamer en Badkamer | 6,88m x 5,63m Luxe Tiny House voor Recreatie, Glamping of als Gastenverblijf
- 5 Jaar Garrantie
- 60% Aanbetaling en de rest na oplevering
- Inclusief Montage op Locatie
Technische Specificaties
| Vloeroppervlakte | 38.7m² |
| Wanddikte | 44mm |
| Wandisolatie | 100mm |
| Vloerisolatie | 100mm |
| Dakisolatie | 100mm |
| Wandhoogte | 2.33m |
| Nokhoogte | 3.315m |
| Dakbalken | 19mm |
| Vloerbalken | 28mm |
| Ramen | Ramen 1 x Antraciet (7016) PVC Dubbele Ramen, 8 x Antraciet (7016) PVC Enkele Ramen |
| Deuren | 1 x Antraciet (7016) Grote Dubbele Deur, 3 x Binnendeur |
Vakkundig opgebouwd door onze ervaren timmerlieden en blokhutspecialisten. Inclusief 10 jaar constructieve garantie bij geïsoleerde modellen en 2 jaar bij enkelwandige uitvoering.
Ons hoogwaardige TATA stalen dak met krasbestendige uPVC-coating wordt in één stuk geplaatst – van nok tot goot. Geen lekkage, geen onderhoud. Beter dan shingles of dakpannen die snel slijten.
Vaak vergeten, maar essentieel. Ze leiden regenwater veilig af en beschermen de hoeken van je blokhut tegen spatwater en houtrot. Standaard inbegrepen.
100 mm minerale wol onder het dak vermindert warmteverlies en zorgt voor een aangenaam binnenklimaat – warm in de winter, koel in de zomer.
Standaard inbegrepen bij alle woonmodellen: 100 mm minerale wol onder de vloer voor optimale energie-efficiëntie.
Onze 28 mm dikke vloerdelen zijn extra stevig en bestand tegen zware belasting – geen doorbuiging of gekraak. Sterker dan de standaard 19 mm variant.
Deze zichtbare binnenzijde van het dak combineert sterkte met betaalbaarheid. Duurzaam en betrouwbaar.
Verplicht onder 800 mm hoogte. Alle deuren en hoge ramen zijn aan beide zijden voorzien van gehard veiligheidsglas – voor maximale gemoedsrust.
Alle blokhutten worden standaard geleverd met 24 mm dubbel glas en gelamineerd hout, inclusief 5-punts sluiting op deuren. Onderhoudsvrije UPVC-optie is beschikbaar.
Droge isolatie is effectieve isolatie. Al onze modellen worden voorzien van ademende dampremmende folie onder vloer en dak.
Alle modellen worden geleverd met voldoende premium Tikkurila of Osmo producten voor minstens twee lagen, inclusief primer en sealer. In een kleur naar keuze voor langdurige bescherming en mooie afwerking.
Kan beschikbaarheid voor afhalen niet laden
De Model Veluwe is een charmante barn style log cabin met twee slaapkamers, ontworpen voor iedereen die de landelijke rust wil combineren met modern comfort. Met zijn royale afmetingen van 6,88 × 5,63 meter biedt deze houten woning volop ruimte voor een gezellige woonkamer, keuken en slaapvertrekken.
Dankzij het duurzame hout, de karakteristieke schuurstijl en het slimme ontwerp is de Model Veluwe perfect als vakantiehuis, gastenverblijf of compacte woning. Een stijlvolle blikvanger die direct de sfeer van het buitenleven oproept.
Belangrijkste kenmerken
- Royale indeling: twee slaapkamers plus een open woon-/eetkamer, slim ontworpen om de ruimte te maximaliseren op een breedte van minder dan 7 meter
- Rustiek – ontmoet eigentijds design: de daklijn in schuurstijl voegt visueel drama en eindeloze mogelijkheden voor grote glaspartijen toe
- Eersteklas vakmanschap: Gemaakt van hoogwaardig Scandinavisch sparrenhout (of vergelijkbaar), met in elkaar grijpende tong-en-groefhoutblokken voor stevigheid en een lange levensduur
- Energiebewust bouwen: Natuurlijk hout wordt gecombineerd met optionele isolatie-upgrades om u warm te houden in de winter en koel in de zomer
- Flexibele afwerkingsopties: Aanpasbaar uiterlijk met verf, beits of bekleding, passend bij uw landschap
- Eenvoudige installatie: modulaire houtblokkensets met voorgesneden onderdelen en duidelijke instructies: snel in elkaar te zetten, gemakkelijker om van te genieten
- Blijvende waarde: Onderhoudsvriendelijke, robuuste structuur die leefruimte buiten toevoegt en de aantrekkingskracht van onroerend goed vergroot
Levertijd
Levertijd
Levering binnen 3-4 weken
Montage binnen 1-2 Weken

Heeft u vragen over het product? Aarzel niet om ons te contacteren voor persoonlijk advies.
Ons Barnstyle design combineert de stoere uitstraling van traditionele schuurarchitectuur met het comfort van moderne bouw. De kenmerkende hoge daklijn en open indeling creëren een ruimtelijk gevoel, terwijl de robuuste houtconstructie en strakke afwerking zorgen voor een tijdloze en duurzame uitstraling. Dit ontwerp past perfect in zowel een landelijke omgeving als een moderne tuin en is ideaal voor wie houdt van een natuurlijke, karaktervolle look met volop licht en leefruimte.
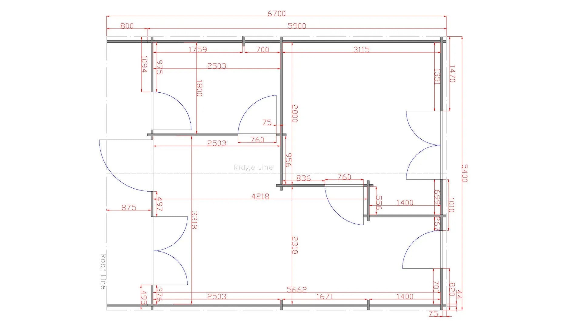
Plattegrond
Wat onze klanten zeggen:
"We kunnen het Horizon Cabins-team niet genoeg bedanken voor de prachtige hut die ze voor ons hebben gebouwd. Van de ontwerpfase tot de laatste hand was het team professioneel, responsief en deed altijd alles om ervoor te zorgen dat we tevreden waren met de afgewerkt product. We brengen graag tijd door in onze hut en zijn zo dankbaar dat we zo'n geweldig bedrijf hebben gevonden om mee samen te werken." -Jerry en Linda K.
What our customers say:
"We waren een beetje nerveus over het vanaf nul bouwen van een blokhut, maar het team van Horizon Cabins maakte het proces eenvoudig en stressvrij. Ze begeleidden ons bij elke stap van het proces en beantwoordden onderweg al onze vragen. Het eindresultaat was een verbluffende hut van hoge kwaliteit die we graag de onze noemen. We zouden Horizon Cabins ten zeerste aanbevelen aan iedereen die een hutproject overweegt. " -Sarah en Matt H.
What our customers say:
"We wisten dat we een hut wilden die zowel rustiek als modern was, en het team van Horizon Cabins heeft echt geleverd. Ze hebben met ons samengewerkt om een uniek ontwerp te creëren dat perfect bij onze stijl en budget paste. Het bouwproces verliep naadloos en het eindresultaat was een hut waar we enorm trots op zijn. We kunnen niet wachten om nog veel meer herinneringen te maken in onze Horizon Cabin." -Kevin en Emily J.